Działka budowlana
Nowy Kisielin, Zielona Góra, lubuskie
- 8 900 000 zł
- 35 300 m²
- 252,12 zł/m²
Aneta Klorek-Gór...
Skontaktuj się
Działka budowlana
Nowy Kisielin, Zielona Góra, lubuskie
zobacz mapę
zaktualizowane:
5 listopada 2025
Działka budowlana
Zaktualizowane: 5 listopada 2025
8 900 000 zł 35 300 m² 252,12 zł/m²
Skontaktuj się, zanim wzrośnie
średnie zainteresowanie
budowlana
-
nieregularny
prąd
Zobacz na mapie
Rodzaj działki:
budowlanaDojazd:
-Kształt:
nieregularnyMedia:
prądSzczegóły ogłoszenia
- Typ oferty: działka na sprzedaż
- Cena: 8 900 000 zł (252,12 zł/m²)
- Forma własności: własność, księga wieczysta
- Działka: budowlana, 35 300 m²
- kształt: nieregularny; teren zróżnicowany
- działka nieogrodzona
- Media: prąd
- Źródło: biuro nieruchomości: LDK NIERUCHOMOŚCI, zaktualizowane: 05.11.2025
- numer ogłoszenia: LDK218083
Oferta na wyłączność – nie szukaj dalej
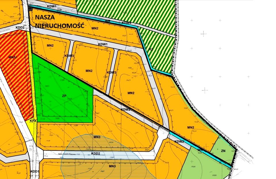
Lokalizacja
- Adres: Nowy Kisielin, Zielona Góra, lubuskie
- Otoczenie: las, jezioro
Opis nieruchomości
Na sprzedaż atrakcyjna Działka Inwestycyjna - Zabudowa Jednorodzinna
Powierzchnia: 35 300 m²
Cena netto: 8 900 000 zł
Oferujemy na sprzedaż działkę inwestycyjną o powierzchni 35 300 m², przeznaczoną pod zabudowę jednorodzinną. Działka znajduje się w spokojnej okolicy, otoczona pięknymi lasami co sprzyja odpoczynkowi. W sąsiednich miejscowościach jest wiele pięknych jezior, które pozwalają się zrelaksować nie tylko w letnie dni. (...)
Rozwiń opis
- Zgłoś błąd lub naruszenie
- Drukuj

